Расход материалов для маленькой печи шведки
Любая стройка начинается с планирования материальных затрат. В следующей таблице представлены основные материалы, которые потребуются для устройства маленькой печи шведки:
| Необходимые материалы и приборы | Количество |
| Кирпич красный, М — 200 | 380 шт |
| Кирпич шамотный, Ш — 8 | 50 кг |
| Задвижки дымовые, 1 3 × 13 см | 3 шт |
| Дверка топочная, 2 1 × 25 см | 1 шт |
| Дверка поддувальная, 1 3 × 13 см | 1 шт |
| Дверки прочистные, 7 × 13 см | 4 шт |
| Решетка колосниковая, 25 × 35 см | 1 шт |
| Варочная плита одноконфорочная, 42 × 42 см | 1 шт |
| Уголок стальной, 60 × 60 × 5 мм | 250 см |
| Полоса стальная, 50 × 5 мм | 250 см |
| Глина, песок | по потребности |
| Мертель | 20 кг |
Данный расход материалов не учитывает дымохода, который может иметь различное исполнение в зависимости от личных предпочтений и конструкции перекрытий, крыши.
Материалы
Следует учитывать, что важным моментом изготовления печи «шведки» является качественный материал. Чтобы обеспечить долговечное использование печи, необходимы материалы высокого качества. Для установки печи понадобятся следующие материалы:
- Шамотный кирпич. Данный вид кирпича содержит в себе 80% огнеупорной глины, благодаря чему способен выдерживать нагрузку очень высокой температуры. Конструкция, выполненная из обыкновенного кирпича, при достижении очень высоких температурных показателей может не выдержать, раскрошиться и разрушиться.
- Глина. Необходим для кладки кирпичей качественный глиняный раствор, который обеспечит надежность и долговечность всей конструкции. Чтобы верно подобрать глину и самостоятельно приготовить из нее раствор, желательно проконсультироваться по данному вопросу с печниками.
- Металлические детали: заслонки, задвижки, дверцы. Как правило, выполняются из литого чугуна. С помощью декоративных подобных деталей печи можно придать определенный стиль. При кладке следует учитывать, что кирпич и металл обладают различными структурами в плане расширения тепла.
- Отделочные материалы. Подбираются по желанию и вкусу, учитывая финансовые возможности и стиль помещения. Как правило, используется штукатурка, известь или плитка. Именно завершающий отделочный этап в создании печи придаст всей конструкции законченный вид.

Как сложить шведку своими руками: пошаговая инструкция
Подготовка чертежей и материалов
Чтобы печь-шведка функционировала на полную мощность, нужна подробная схема кладки. Чтобы избежать ошибок при возведении устройства, лучше обратиться за помощью к мастеру-печнику. Он поможет определить оптимальные размеры печки, чтобы жилище полноценно прогревалось, а также посчитает оптимальное количество материалов.
Для устройства печи с духовкой и варочной панелью понадобится приобрести такие материалы, как:
- огнеупорный шамотный кирпич;
- специальная глина для возведения печей;
- чугунные дверцы, варочная поверхность, заслонки, задвижки, металлическая духовая камера;
- асбестовый шнур и листы;
- колосники;
- задвижка для дымовых каналов;
- металлические уголки;
- отделочные материалы для декора.
Для обустройства сооружения потребуются такие инструменты:
- лопаты — совковая и штыковая;
- емкость для замешивания раствора;
- ведро;
- резиновый молоточек;
- миксер для перемешивания растворной смеси;
- уровень, отвес, угломер, правило;
- мастерок.
Определение места
Правильное место расположения плиты тоже играет немаловажную роль
Важно, чтобы дверцы сооружения открывались удобно, тогда загрузке дров ничего не будет мешать. А также нужно предусмотреть монтаж дымохода — его располагают между несущими балками перекрытия
Чтобы понять, как будет располагаться устройство в комнате, рекомендуется на сухую без раствора поверхность уложить первый ряд. Так, удастся ориентировочно определиться с размещением важных элементов.
Закладка фундамента
Печной фундамент формируется отдельно от основы дома. Это убережет отопительное устройство от преждевременного разрушения. Этапы закладки основания такие:
- На деревянном полу отмечается периметр будущего сооружения с припуском на 10—15 см.
- Болгаркой вырезается нужных размеров отверстие.
- Вырывается котлован глубиной 65—80 см.
- Дно рва засыпается песком толщиной 150—200 мм, и хорошо утрамбовуется.
- Затем кладется слой щебенки, после чего формируется опалубка.
- Для гидроизоляции перед заливкой фундамента устилается слой рубероида.
- Основание заливается цементно-песчаным раствором, потом дополнительно армируется.
Гидроизоляция
Чтобы в кирпичной кладке не образовалось трещин из-за влаги, рекомендуется провести изоляцию таким образом:
- По размеру фундамента вырезать 2—3 куска рубероида.
- Сложить листы и скрепить степлером.
- Разложить гидроизолятор по поверхности готового фундамента.
Укладка кирпича
Пошаговая инструкция формирования порядовки представлена в таблице:
| Ряд | Описание работ |
| 1—2 | Формируется ровная сплошная кладка с точным соблюдением углов |
| 3—4 | Отводится место для зольной камеры, устанавливаются 3 дверки для чистки |
| 5 | С одной стороны, выставляется канал для отвода дыма, на другой стороне формируется топочная камера, устанавливаются колосники и духовая камера |
| 6 | Закладывается основание топки, выкладывается дымоход |
| 7, 8, 9 | Выкладывается топочная камера, возводятся дверки топки |
| 10 | Духовка и дверца топки перекрываются перегородкой |
| 11 | Устанавливается варочная панель |
| 12—16 | Кладка дымовых каналов |
| 17—18 | Монтируются металлические уголки и перекрывается кирпичом варочная поверхность |
| 19—20 | Устанавливаются прочистные дверцы и формируется сушильная камера |
| 21—28 | Наращивание камер для просушки, монтаж задвижки, защищенной асбестовым шнуром |
| 29 | Возведение карниза, расширение кладки на ¼ кирпича, перекрытие каналов сушильных камер |
Формирование дымохода
С 30 ряда кладка расширяется на 50 мм, а на 31 ряду размер печки уменьшается до первоначального вида. Из 5 кирпичей наращивается труба, 1—2 ряд возводятся одинаковыми, далее проводится «распушка», которая защитит деревянные перекрытия от возгорания, а также не дадут ветру проникнуть внутрь трубы и снизить тягу. Безопасное расстояние от верха трубы до кровли — 65 см.
Просушка и протопка
После того как печь будет полностью выложена, необходимо ее просушить. В среднем рекомендуется подождать 10—15 дней. Далее устройство можно вводить в эксплуатацию. Для первой протопки закладывается небольшое количество дров. Как только материал перегорит, можно заложить новую порцию. Благодаря такому непрерывному сгоранию сооружение равномерно досохнет, и не будет растрескиваться. Лучшим материалом для растопки считаются осиновые дрова, а вот от сосновых и березовых стоит отказаться, потому что они выделяют много смолы, которая разрушает кладку.
https://youtube.com/watch?v=1o7dLgkdb7Q
Фундамент — монолитный бетонный
Материалы
Для фундамента под печь подойдет бетон марки В15 (М200). Для приготовления такого бетона составляющие берутся в следующей пропорции: цемент — 1 часть, щебень — 4 части, песок — 2 части.
Цемент нужно взять не меньше М400. Крупным заполнителем может служить щебень или гравий, размер частиц которого не превышает 30 мм. Для бетонных работ пригоден песок с примесями не более 10%. К ним относятся глина, слюда, органического происхождения и пылевидные частицы. Примесей в крупном заполнителе должно быть меньше 2%.
Необходимые материалы для фундамента можно рассчитать, исходя из расхода на 1 м3 готового бетона:
- Цемент М400 — 325 кг/м3.
- Песок — 1300 кг/м3.
- Гравий (щебень) — 1300 кг/м3.
- Вода — 205 л/м3.
Инструменты
Для производства бетонных работ необходимо иметь инструмент, с помощью которого:
- укладывают бетонную смесь (лопата, кельма);
- утрамбовывают (трамбовки, щуп);
- разглаживают (гладильная доска, полутерок, затирка, железнилка, уголок).

1 — щуп; 2 — трамбовка узкая; 3 — трамбовка круглая; 4 — трамбовка квадратная; 5 — гладилка; 6 — скребок; 7 — полутерок; 8 — гладильная доска
Последовательность бетонирования
Очень важно определиться с глубиной, на которую необходимо заложить фундамент под печь. Это зависит от возможности грунта сопротивляться нагрузкам на него (несущей способности)
Достаточно много существует грунтов со слабой несущей способностью. Они под действием нагрузок могут изменять свою первоначальную структуру (просадочные лессовые и содержащие растворимые соли, набухающие глинистые, биологического происхождения, а также водонасыщенные, зимой увеличивающиеся в объеме).
Так, например, для мелких (пылеватых) песков, супесей, суглинков и глин, в которых грунтовая вода находится выше глубины промерзания грунта, низ фундамента назначается ниже этого уровня. Глубина промерзания определяется по результатам многолетних наблюдений.

1 — песчаная подушка; 2 — гравий; 3 — глубина промерзания; 4 — монолитный фундамент; 5 — гидроизоляция; 6 — уровень пола; 7 — кирпичная кладка
Это в случае, если дом зимой может быть неотапливаемым. Если дом отапливается весь зимний период, то подошва фундамента должна быть на глубине более 50 см от планировки земельного участка.
При плотных грунтах с хорошей несущей способностью бетонировать фундамент можно и без опалубки. Тогда яму роют точно по размерам фундамента. Если грунт осыпается, необходимо устройство опалубки. Изготавливают ее из древесины хвойных или лиственных пород, которая не подвержена короблению. Доски берут толщиной не менее 19 мм и влажностью не более 25%.
На дно ямы под фундамент делается подушка толщиной не менее 15–20 см из песка и гравия, который утрамбовывается.
Укладывая бетонную смесь, обязательно проведите ее трамбование или уплотнение, чтобы освободить появляющиеся в ней воздушные пузыри. Это увеличивает плотность бетона, а, следовательно, и прочность.
Уход за свежеуложенным бетоном состоит в поддержании для него необходимой температуры и влажности. Это защита от быстрого высыхания поверхности бетона в ветреную жаркую погоду с помощью какого-либо влажного покрытия (мешковина, брезент, влажные опилки или песок).

Защита свежего бетона от излишнего увлажнения, высыхания, а также охлаждения производится в течение одной-двух недель в соответствии с температурой внешнего воздуха. Самое главное, чтобы бетон набрал не менее половины своей полной прочности.
Убрать опалубку можно только в случае, когда будет достигнута достаточная прочность бетона (50%). Чаще всего это происходит не раньше 7–14 дней при температуре от +5 до +20 °С. Чем выше температура, тем быстрее идет набирание прочности.
Поверх застывшего бетона кладется гидроизоляция (2 слоя рубероида). Размер фундамента нужно принять на 100 мм больше с каждого края печи.
https://youtube.com/watch?v=SzodQtFQYdY
Выкладываем классическую «шведку»
Размеры данной печи составляют 102 х 88.5 см в плане, высота – 2.03 м, обогревательная мощность – 3.2 кВт. Соответственно, площадь отопления – до 40 м² дачного дома, утепленного согласно климату в районе проживания.

Духовку отопителя можно использовать для выпечки и обогрева кухни
Чтобы самостоятельно сложить традиционную «шведку», закупите такие материалы:
- кирпич полнотелый керамический стандартных размеров 250 х 120 х 65 мм – 553 шт.;
- кирпич шамотный ША-8, рабочая температура – до 1300 °С, размер 230 х 114 х 65 мм – 33 шт.;
- колосниковая решетка 30 х 20 см;
- духовка 45 х 25 х 29 см;
- дверцы: топочная 21 х 25 см, поддувала 14 х 25 см, ревизионная 14 х 14 см (3 шт.);
- панель варочная 2 конфорки из чугуна 410 х 710 мм;
- задвижки: дымовая 25 х 13 см, вытяжная 13 х 13 см;
- уголок стальной равнополочный 45 х 45 мм общая длина 6.5 м;
- полоса стальная сечением 50 х 5 мм длиной 2 м;
- лист металлический толщиной 2 мм – 1 м².

Стенки, контактирующие с пламенем и раскаленными газами, выкладываются огнеуопором По противопожарным требованиям со стороны топливника на полы укладывается лист кровельной стали 70 х 50 см. Стройматериалы на дымоход и фундамент в списке не учтены.
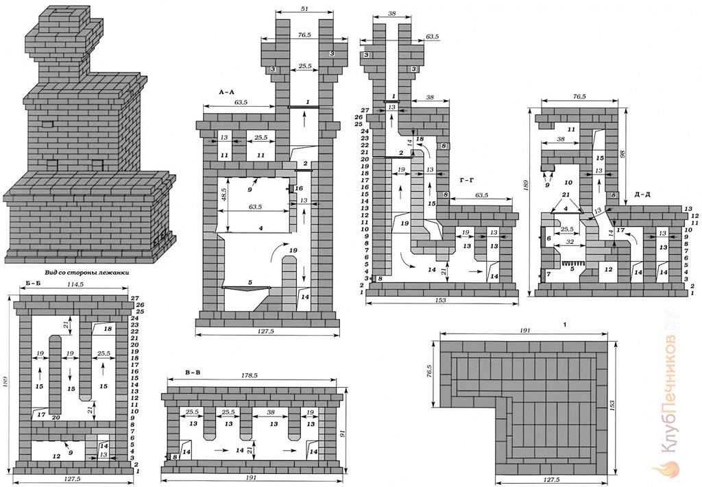
По готовности печка — «шведка» выкладывается согласно представленным порядовкам:
- Ряды 1, 2 – сплошные, на третьем закладываются очертания зольника, вторичной камеры для духовки и вертикальных шахт. Крепим 3 прочистные дверцы и одну поддувальную.
- Четвертый ярус – продолжение кладки по чертежу, пятый перекрывает установленные дверцы. Начинаем формировать дно топливника из шамотных кирпичей и ставим колосники, предварительно сделав углубление в камнях болгаркой.
- Ряд 6 – выкладываем стенки камеры сгорания, монтируем духовку и загрузочную дверку. Между топкой и отсеком духового шкафа делаем перегородку толщиной ¼ шамотного камня. 7-й горизонт строим по схеме, на восьмом перекрываем нижний газоход, девятый ярус накрывает дверцу основной камеры.
- После десятого ряда устанавливается варочная панель и металлический уголок с лицевой стороны. На 11-м начинаются формироваться стенки ниши, горизонты 12—16 – продолжение. Затем укладываем опорные уголки и кирпичное перекрытие – ряд №17. Слева оставляем вытяжной проем над нишей размером в полкирпича.
- На 18-м ярусе крепим второй торцевой уголок и начинаем класть стенки сушильной камеры (ряды 19—26). После 22 горизонта накрываем печурку листом 34 х 19 см, на 26 ряду ставим очередные уголки перекрытия, сверху располагаем металлическую пластину размером 905 х 800 мм.
- Ярусы 27—29 – сплошные, оставляем один проем дымохода. Ряды 30—31 – формируем начало трубы с внутренним каналом 250 х 140 мм.
Дальнейшая кладка ведется на цементном растворе, с соблюдением правил пожарной безопасности. То есть, в деревянном потолке устраивается печная разделка толщиной полтора кирпича (38 см), на кровле – отступка 130 мм, как это сделано на схеме.

Порядок кладки шведской классической печи смотрите на видео:
https://youtube.com/watch?v=U6wB6xI4DsQ
Устройство и особенности шведской печи
При разработке «шведки» за основу была взята «голландка», последняя на тот момент была уже достаточно распространена и зарекомендовала себя с хорошей стороны. Но поскольку климат Скандинавского полуострова суровее европейского, а запасов топлива меньше, голландку основательно переделали и приспособили под свои условия, в результате чего на свет появилась отопительно-варочная шведская печь.
Она частично сохранила принцип действия голландки, но при этом добавились элементы, позволяющие готовить пищу и сушить одежду, а в разных типах печки присутствует и лежанка. Мы говорим о разных видах, поскольку печь шведка может дорабатываться и изменяться конструктивно, сохраняя общую концепцию. А концепцией предусмотрен канальный принцип действия, как у голландки, но с дополнительными устройствами для отбора тепла:
- Металлическая духовка.
- Варочная панель с нишей.
- Верхняя ниша.
Ниже на фото представлена схема шведской печи, на которой перечисленные элементы обозначены соответствующими цифрами.
Духовка из металла находится сбоку от камеры сжигания и предназначена для отбора от нее тепла напрямую и передаче его в помещение. Приготовление выпечки – не основная функция духовки, она буквально через 5 минут после растопки уже пышет жаром, стоит только распахнуть дверцу. На схеме видно, почему так происходит. Продукты сгорания, прежде чем опуститься к полу и уйти, нагревают корпус духовки сверху и сбоку, а с другой стороны он нагревается топкой. Такая конструкция делает возможным применение любого мелкого топлива для отопления дома и приготовления пищи.
Ниша над плитой прогревается непосредственно от камеры сгорания, распространяя теплый воздух в помещении кухни. Верхняя ниша, изначально задуманная для просушки вещей, снизу нагревается от плиты и сзади от каналов, где проходят продукты сгорания. Последние, обогнув духовку, выходят в систему вертикальных каналов и там передают свое тепло телу печи, после чего выбрасываются через дымоход.
В силу особенного строения дымовых каналов шведка будет интенсивно прогревать полы и грунт под ними, что нерационально. По этой причине установка отопительно-варочной печи должна выполняться на основание с теплоизоляцией. Для нее прекрасно подойдут листы базальтового картона толщиной 5 мм, их потребуется уложить в три слоя с прослойкой из алюминиевой фольги в качестве отражающего экрана.
Размещение шведской печи в частном доме
Поскольку основное тепло дымовых газов отдается задней стенке печки, ее принято устанавливать в простенке между помещениями кухни и спальни (либо гостиной). В некоторых разновидностях шведок с тыльной стороны устраивается камин или лежак относительно небольших размеров. Габариты лежака в шведском варианте – 1800 х 660 мм, что маловато для комфортного отдыха и сна.
Шведская отопительно-варочная печь с лежаком отличается от обычной конструкции наличием горизонтальных каналов и режимов работы зима/лето. Это реализовано с помощью дополнительной задвижки, устанавливаемой в прямом вертикальном канале. Зимой задвижка закрывается и продукты сгорания движутся по большому кругу, через горизонтальные газоходы лежанки, после чего возвращаются в дымоход. Летом заслонка открыта и свободен прямой путь в вертикальную трубу, по ней дымовые газы просто выходят наружу. Таким образом, греется только варочная плита.
Шведка с камином — инструкция по кладке
Сначала выкладывается фундамент в виде квадрата со стороной 110 см. Его верхняя поверхность должна находиться ниже пола на один кирпич.
Первый ряд печи сплошной. 2-й ряд такой же, но в месте нахождения камина устанавливается решетка. В 3-м ряду формируется зольная камера и закрепляется ее дверка, а также оборудуется вертикальный канал и место для духового шкафа.
Устанавливаются 2 дверки для чистки, и выкладывается каминный топливник. 4-й ряд такой же. В 5-м ряду создается место для установки колосниковой решетки.
В 6-м ряду перекрывается проход между вертикальным каналом и духовкой, устанавливается дверка топки
Важно учесть, что между топкой и духовкой кирпичи устанавливаются на ребро, а поверхность кирпича 7-го ряда совпадала с плоскостью 8-го ряда
В 7-м ряду над топкой укладываются две полосы из металла. 8-й, 9-й ряд такие же. На 9-м ряду над духовкой укладываются 2 полосы из стали.
В 10-м ряду оборудуется место для чистки камина и для установки варочной плиты. Устанавливается плита, уголок из стали, справа от варочной поверхности пространство не закрывается. В 11-м ряду формируется варочная ниша, закрывается отверстие. В 12-м ряду в передней стенке камина укладываются срезанные наискосок кирпичи. 13-й ряд такой же. В 14-м ряду для создания каминной полки кирпичи выдвигаются на 25 см по периметру полки. На 15-м ряду кирпичи в каминной полке выдвигаются еще на 25 мм. В 16 ряду завершается выкладка варочной ниши укладкой трех металлических полос. 17-й и 18-й ряд одинаковые. В 19-м ряду формируются дымоходы. Между вертикальным и каминным каналами укладываются кирпичи, срезанные с двух сторон наискосок.
21-й, 22-й и 23-ряд аналогичны, в них оборудуются дверки для чистки каналов. Перегородка между вертикальным и каминным каналом постепенно смещается влево. Задвижка камина устанавливается в 24-м ряду, а задвижка печи — в 25-м. Вертикальный канал с дымоходом соединяются в 26-м ряду, и устанавливается дверка для чистки. В 27-м ряду продольные стороны канала над камином выкладываются срезанными наискосок кирпичами. 28-й ряд такой же. 29-й ряд сплошной с отверстием дымохода. 30-й такой же, но отверстие уменьшается, а кирпичи на 3 см со всех сторон выдвигаются наружу. В 31-м ряду устанавливается общая задвижка. С 32-го ряда начинается кладка трубы.
Кирпич для печи должен быть качественным, без трещин и сколов. Перед проведением кладки его нужно вымачивать.
Строительные материалы
Если взять за основу строение “Шведки” традиционного вида с мощностью 3,2 кВт (для площади размером 40 кв.м., а при расчете на приличное утепление – размер таковой увеличится до 50 кв.м).
Для работы необходимо сделать закупку следующих материалов:
- кирпич шамотный (ША-8) в количестве 33-х штук;
- керамический кирпич полнотелый – 552 штуки;
- устройство духовки с размерами 45х25х29 сантиметров;
- решетка колосникового формата – 20х30 сантиметров;
- панель для варки из чугуна – 410х710 миллиметров;
- топливная дверца – 21х25 сантиметров;
- резиновая дверца (в 3-х экземплярах) – 14х14 сантиметров;
- заслон для зольника – 14х25 сантиметров;
- задвижка для дымохода – 25х13 сантиметров;
- заслонка для вытяжки – 13х13 сантиметров;
Для того, чтобы сформировать нишу, необходим стальной равносторонний уголок с шириной 4,5 сантиметров и шина 5х0,5 сантиметров.
В качестве раствора для кладки рекомендуется использовать специально предназначенные готовые сухие строительные смеси, предназначенные для каминов и печей.
Необходимые материалы
- Кирпич красный (только на саму печь) 553 шт.
- Огнеупорный кирпич ША-8 = 32 шт.
- Глиняный раствор.
Дверки:
- 21 х 25 см (топочная). Она должна быть литая, с усами.
- 14 х 25 см.
- 14 х 14 см (для чистки) = 3 шт.
Уголок стальной:
- 4,5 х 4,5 х 1м.20см. = 1шт.
- 4,5 х 4,5 х 70см. = 1 шт.
- 4,5 х 4,5 х 90,5 см. = 5 шт.
Другие материалы:

Шкаф духовой для шведки
- Стальные полоски 5 х 65 см (толщина 5 мм.) – 2шт.
- Задвижка 25 х 13 см.
- Задвижка для вытяжки пара 13 х 13 см.
- Колосниковая решётка 20 х 30 см.
- Духовой шкаф 45 х 25 х 29 см.
- Плита (чугун) 41 х 71 см.
- Лист для перекрытия сушильных камер 80 х 90,5 см.
- Стальная пластина для малой сушилки 19 х 34 см.
- Лист перед топкой 50 х 70 см.
Строим шведку: c лежанкой
Шведская печь со скамейкой, конструкция и порядок работы которой показаны на рисунке, предназначена для отопления дома жилой площадью 25-40 кв м в зависимости от климатических условий местности. Кровать максимально большая для шведа, чтобы человек среднего роста мог спать прямо на ней. Кровать включается при закрытии направляющей 2.

Схема шведской печи с лежанкой
Деталь к фото:
- Отображать;
- Летняя ставня;
- Огненная резка;
- Кухонная плита;
- Решетка;
- Дверца духовки;
- Вентиляторная дверь;
- Чистые двери;
- Крепеж стальной;
- Кулинарная ниша;
- Печи;
- Расширительная камера;
- Шапки;
- Горизонтальные каналы для зимнего бега;
- Вертикальные зимние ходовые каналы;
- Вентиляционная дверь;
- Попадание дыма в дымовой контур;
- Выход дыма в дымоход;
- Хайло;
- Bypass (переполнение, от англ. Bypass — обход);
- Температурные компенсационные зазоры.

Заказать шведскую печь с лежанкой
Для этой печи потребуется 600 штук полнотелого красного кирпича М200, 200 штук шамота Ш8 и 150 кг мергеля. Каменный песок или кварцевый — по мере необходимости замесить раствор до густоты сметаны. Кроме того, 0,8 м стального уголка — шестидесяти и 5 м стальной ленты 50х5 мм.
Среди аксессуаров вам понадобится стандартная чугунная плита 710х410 мм, решетка 250х400 мм, топочная дверца 210х250 мм, нагнетательная дверца 140х250 мм. Требуется 7 клапанов: 2 дымовых клапана 130×260 мм (обзорный и летний ход / кровать) и 5 очистных клапанов 70×130 мм.
Духовки в этой духовке не предусмотрено — предназначенное для нее тепло уходит в большую варочную поверхность, а летом он вообще не нужен. Дожигатель топлива обеспечивают 13 колоколов.Хотя эта печь работает как шведская печь с точки зрения технологии газодинамического нагрева, но благодаря лежанке она больше подходит для мест с морозным, но сухим (континентальным) климатом. В местах с холодным морским климатом необходимую тепловую волну, чтобы быстро нагреться, такая печь не даст. В общем, русско-азиатский швед.
Порядовые чертежи печи «Шведка» системы К.Я.Буслаева
Мне известны более 12 различных схем печей шведок, из которых я лично сложил 7. Из этих семи для меня лучшей являеться «Шведка» разработанная К.Я. Буслаевым. Кладка любой Шведки являеться не простой задачей со сложной системой дымооборота и повышенными требованиями к пропорциям и перевязке швов. И ошибки тут быть не может , иначе либо проблема с тягой или бешенный расход кирпича на бой 1/4 , 1/2 и 3/4, это вам не простая кирпичная кухонная печь-плита с которой можно переиграть все 3 раза за день. По этому крайне советую воспользоваться проверенной схемой именно этой печи Буслаева.
osnovaremonta.ru
Кладка печи ведеться в основном кирпичем на ребро , предварительно весь кирпич отмачиваеться в воде чтобы добиться минимальной толшины швов. Неровный кирпич необходимо стесывать друг об друга. Размер Шведки Буслаева 1160х900 мм, высота без трубы 2100 мм, теплоотдача 5 Квт. Так же печь снабжена чугунной плитой 560х965 мм , самоварника и духового шкафа 600х400х350 мм. Под печь необходим отдельный фундамент. До точно проверено не смотря на сложный пятиканальный дымооборот за счет тщательного расчета схемы печи конденсата как при топке газом на выходе из трубы не образуеться. Так же продуман режим самостоятельной чистки и несложного ремонта печи.
osnovaremonta.ru
Кладка печи шведкатребует: около 300кг глино-песчаного раствора и 550 кирпичей стандартного размера 250х120х65 Под шведку необходим основательный фундамент, кирпич необходимо вымачивать.Кладка печи выполняеться в пол кирпича(120 мм) до 11 ряда включительно, далее кирпич на ребро(65мм)
Материалы для кладки «Шведка» К.Я. Буслаева.
- -дверца топочная,21х25 см-1 шт;
- -дверца поддувальная, 14х25 см-1 шт;
- -дверца прочистная, 12х12 см-3 шт;
- -кирпич красный-550 шт;
- -духовка 45х25х29 см-1 шт;
- -колосник 20х30 см-1 шт;
- -задвижка 25х13 см-1 шт;
- -плита чугуная 2 комфорками, 41х71 см-1 шт;
- -задвижка от вытяжки 13х13 см-1 шт;
- -шамотный кирпич ША-8-30 шт;
- — уголок стальной 45 х 45 х 700 – 1 шт;
- — уголок стальной 45 х 45 х 905 – 5 шт;
- — полоска стальная 50 х 5 х 650 – 2 шт;
- — полочка сушки 190 х 340 – 1 шт;
- — лист перекрытия сушильных камер 800 х 905 – 1 шт.
- — лист предтопочный 500 х 700 мм – 1 шт.
На всякий случай отпишу, что слава Шведок несколько преувеличена они уступают современым колпоковым печам в КПД и теплоемкости, кроме таво есть конструкции похожие но более улучшеные например печь «Москвичка» а так же можно поискать выбор в разделе готовые схемы-чертежи 20 печей.
Конструкционные особенности
Впервые в Россию этот агрегат пришел из Скандинавии, когда были разгромлены шведские войска под Полтавой. Уже тогда она пользовалась популярностью благодаря следующим характеристикам:
- экономичность в эксплуатации;
- возможность длительное время удерживать тепло.
Указанные параметры достигались за счет создания уникальной системы из нескольких каналов для отвода газов. Благодаря этому печь одновременно позволяла отапливать помещение, готовить пищу, включая выпечку хлеба, и сушить вещи.
Дизайнерское оформление печи «Шведка» предполагает различное исполнение с арками и иными необычными формами. При этом допускается одновременное использование:
- камина;
- лежанки;
- нагревательного бака с водой;
- сушильной камеры.
Печь «Шведка» из кирпича оборудуется следующими элементами:
- варочная плита;
- вытяжка;
- духовой шкаф;
- тепловой щиток.
Сооружая в доме подобную печь, заднюю поверхность конструкции следует размещать в жилой комнате. Лицевая сторона агрегата с топкой обычно устанавливается на кухне. Устройство предполагает монтаж дымохода, способного функционировать в следующих двух режимах:
- зимний: газы перемещаются по специально оборудованным каналам, прогревая жилье;
- летний: продукты горения направляются непосредственно в трубу.
Важным преимуществом «Шведки» являются ее небольшие габариты: 2,17х1,03х0,88 м (ВхДхШ). По конструкции печь может быть комбинированной или колпаковой, с тремя или пятью каналами.


1 – подина камина; 2 – два Г-образных штыря; 3 – решетка; 4 – стенки камина; 5 – поддувало с окном; 6 – поддувальная дверца; 7 – газоход; 8 – окно чистки; 9 – переходное окно; 10 – окно чистки; 11 – колосниковая решетка; 12 – духовой шкаф; 13 – топочная дверца; 14 – газоход; 15 – перемычка; 16 – перекрытие над порталом камина; 17 – железный уголок; 18 – плита; 19 – дверца для чистки; 20 – напуск; 21 – перекрытие над пространством плиты и боковой стенкой печи; 22 – варочная камера; 23 – каминная полка; 24 – смещение перегородки; 25 – газосборник; 26 – окно для чистки газосборника; 27, 28, 29 – перегородки; 30 – окно чистки; 31, 32 – задвижки; 33 – окно чистки; 34 – задвижка.
Принцип работы печи «Шведка»

Описывая особенности функционирования устройства, необходимо остановиться на работе ее различных участков:
- Каминная зона. В процессе горения выделяются теплый воздух и дым, которые поднимаются, минуя открытую задвижку, и выходят через установленную трубу.
- Кухонная зона. Принцип работы предполагает следующее:
- сгорание дров в оборудованном топливном отсеке, размещенном под плитой из двух конфорок;
- выделяющийся теплый воздух проходит между варочной поверхностью и духовой камерой;
- обойдя духовку с правой стороны, попадает в дымовую трубу;
- нагревшиеся газы, поднимаясь до верха печи, устремляются в горизонтальный канал;
- по установленным газоходам теплый воздух движется в дымовой канал, где через открытые задвижки попадает непосредственно в трубу.
Заключение
При неукоснительном соблюдении порядовки, правил ведения кладки, наличии минимальных навыков работы с кирпичом и кладочными растворами можно получить качественную и функциональную печь, которая станет украшением вашего жилища.
Мнение эксперта
Валерий Гармаш
Шеф повар ресторана “Grill House”, гриллер
Шведка имеет огромное количество вариаций. Кроме рассмотренного решения можно пристроить к ней полок, оборудовать водяной контур.
Весьма востребованными версиями являются следующие конструкции подобных печей:
- Шведка Буслаева – главная отличительная особенность заключается в ведении кладки тела печи ½ кирпича;
- Двухколпаковая шведка Бацулина.





































